1

首页新闻世界政治法律时政评论地产投资教育移民金融理财商机商讯文化科技大千世界衣食住行美容健康社区新闻
当前位置:首页 > > 地产投资

爆红的垂直森林被吐槽,阳台绿化还是得点到为止

时间:2020-6-29
阳台绿化设计
Wardian London
最近几年,世界范围内的高层建筑都开始流行「垂直森林」设计,已建成的、最著名的是位于米兰城中心的 Bosco Verticale 双塔公寓楼(2014 年建成)。


但其实,在高层上搞「垂直森林」特别费事,槽点一大堆。就拿米兰项目来说,开发商需要沿着外墙和阳台种下 480 株大乔木、250株小乔木、5000棵灌木和11000棵地被植物,真正达到了 1 公顷森林的覆盖量。


△Bosco Verticale

如此复杂的方案,造价当然高了,报价 9000 欧一平米(约 7 万RMB),有人说,就这?但是,物业费可是 7000 欧一年啊!快赶上房价了朋友们!3个月一维护,6个月一次外围修剪,80%都是那些「飞翔的园丁」大哥完成的,这人工成本搁在国内也不小吧...


©Stefano Boeri Architetti

可能只有像碧桂园、万科等地产企业才有实力去专门维护。


△碧桂园总部

但使用者的口碑也就那样 ▽


抖音上的网友表示 ▽


实际上,某个带着「第四代住房」的光环大肆宣传的住宅项目——其实就是多了个约 50㎡ 大阳台,人家就「机智」的把每户 30 万的阳台植树绿化造价贴到房屋单价里了。然而,垂直森林和你家摆满花盆的普通阳台最大区别,就在于种植盆的深度,至少是50-110厘米,还得是特制的防渗材质,不然从 20 几层往下漏水可不是闹着玩的。


△注意看 Bosco Verticale 种植盆升深度

另一方面,种 5、6米高的乔木,导致「垂直森林」的荷载会特别大。为了保证结构高度就必须得做到 3.5 米层高——挑高快两层的大阳台,结果是即便有窗户采光也特差、上下层住户之间可相互对望、左右邻居可攀爬「串门」...



其实吧,这个充满绿色的设计理念不可否认也是未来住宅一大方向,只是目前来说,比较好实现的形式不是「垂直森林」,而是「垂直绿化」:别在阳台种大树了,整点藤蔓植物、低矮灌木、花花草草,他难道不香吗?


△网友道出了正解

那么今天就要分享一个比较典型的「垂直绿化」案例,来自英国伦敦的豪华公寓楼项目——Wardian London


△Wardian London 入口
01.建筑设计
该项目位于伦敦金融中心金丝雀码头核心位置,由一高一低的两栋塔楼组成,分别为 55层、高187米的东塔,和 50层、高168米的西塔。共设有 624 套住宅,包含开放式公寓以及奢华顶层复式。


建筑设计由 Glenn Howells Architects 事务所操刀, 从现代主义建筑经典元素中汲取灵感,让简约大气的几何线条与有机的青翠绿植相互交织,最大限度利用自然采光,定义伦敦高层居住新体验。
△设计手稿

而建筑设计主题的确立也特别有意思,和一个“拯救濒危植物”的故事有关。19世纪工业革命正闹的如火如荼,一位酷爱植物的英国医生 Nathaniel Bagshaw Ward 为给当时几近灭绝的蕨类植物谋得一丝生机,发明了一种可以密封养殖植物的玻璃容器。


△英国医生 Nathaniel Bagshaw Ward

由此得名“沃德箱”(Wardian Case)。不过后来,这种装置被推广运用在远途航海上,英国从此就可以从各大洲殖民地运输各种珍稀植物,以满足当时英国上层人士对各类园艺的喜好。

△Wardian Case

扯远了,但是,看似简单的沃德箱与开发商 Ecoworld 和 Ballymore 的对项目的定义不谋而合——建筑外观就像一个巨型玻璃容器,里面种满大量绿植,不仅增加了设计的独创性,还能让室内体验随着季节而变化。


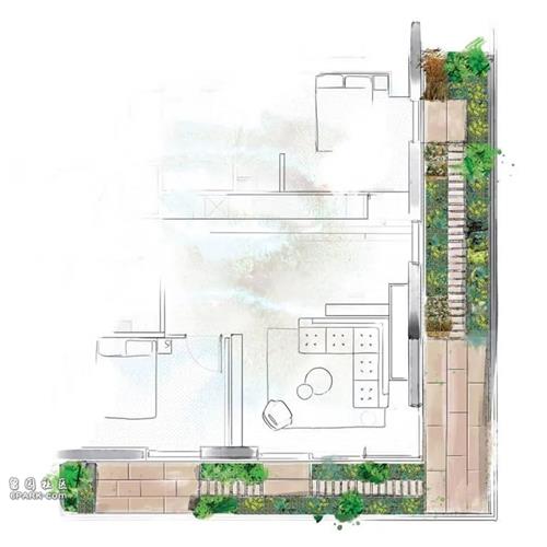
更难能可贵的是,Wardian为高层居住体验树立了新标准,每一套公寓都拥有私人露台花园, 而不仅仅是开放式大阳台噢——在这种寸土寸金的城市中央可是很少见的「私享花园」。景观设计还邀请 HUW MORGAN 负责。


△景观设计手稿&效果图

从接近大楼入口的那一刻,目之所及即是各种各样的绿色植物:在连接两栋塔楼的公共广场上有一个种植着逾 100 种树木与花卉的小型植物园;


顶层的屋顶花园内设观景酒吧,处处绿意盎然,甚至室内高空也垂吊着绿色植物 ▽


△天空酒吧

△屋顶花园

长 25 米的露天泳池也被绿植环抱,白色廊柱切分出立体而简洁的景观视野。








△户外庭院设计概念

公寓所有元素有机的组合,更是将这里营造成一个开放的玻璃花园。大堂四面都以玻璃幕墙做隔断,消弭内外空间的界限。


挑空的设计让空间更开阔,顶部以条木做装饰,呼应建筑外部粗犷线条。地毯也是以绿植为图案。




02.室内设计

公寓室内设计同样由  GHA 操刀,风格统一,从而使建筑外部到内部无缝衔接。


顶层公寓设在 48、49层,每套高两层,虽说不是大平层,但最大的三居室户型室内室外面积加起来也有 320 ㎡ 了。


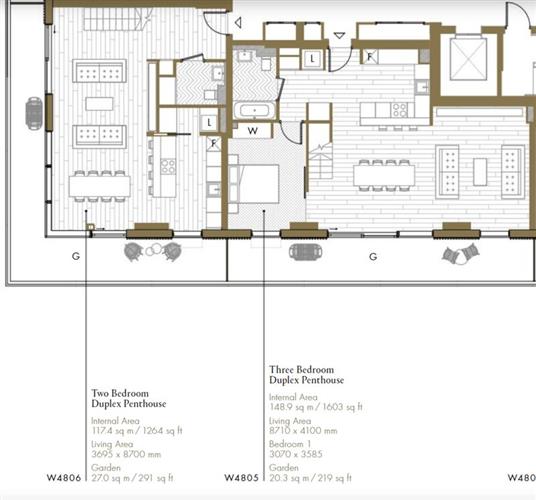
△4806、05一层平面图


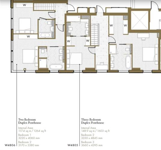
△4806、05二层平面图

内部空间追求优雅又实用,大面积落地窗和青铜色调贯穿始终,并和所有公共区域和入口大厅相呼应。


顶层公寓上下层之间设有量身定制的楼梯,落地窗可让你最大程度饱览城市景观,细密的条木雨篷将露台空间与自然相融合。


双层高开放露台是只有顶层公寓才有的配套,更适合栽种大型乔木。打开门,整片私人花园成为住宅的延伸。这样的尺度具有及其高挑的空间感。




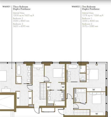
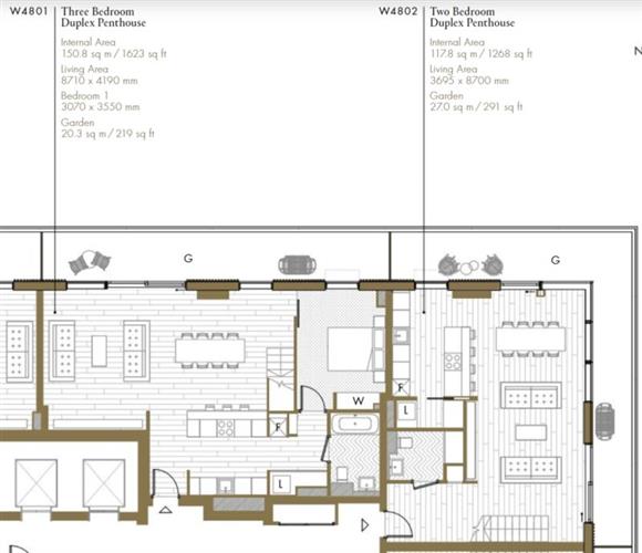
△4801、02底层平面


△4801、02上层平面


△48层总平面图


△49层总平面图

其他每间公寓也都遵循 Wardian 的风格和细节,温润木地板与黑白相间的大理石茶几组合,加上镜面与金属元素和谐衬托,带出丰富层次感。






落地窗和玻璃移门连接着私人露台花园,并享有整个伦敦的壮丽景色。也让自然采光填充起居和就寝空间。



开放式厨房装有玻璃橱柜,与大厅的玻璃花园主题相呼应。大理石台面加上漆成绿色的柜面、吧台凳,有机的纹理和色泽像是一副艺术品。






卧室床头背景墙采用人字拼元素,搭配框架式床体,简约中透露古典气息。


每个私家花园都可以按照主人的喜好布置,或郁郁葱葱或时尚简约。




唯一不变的是对自然景观和居住体验的完美结合。


浴室以白色为主基调,地面铺贴经典的黑白几何瓷砖,墙面大理石纹理细腻。







△w35-29层总平面图



△w30-39层总平面图



△W40-44层总平面图

与所有豪宅产品一样,Wardian London 的住户也将享受 24 小时门卫及礼宾、图书馆、健身房、私人俱乐部等高端配套服务。





采用折中主义设计的天空酒吧 sky bar,以经典的伦敦复古风格为特色,加上热带绿植点缀,是社交休闲的理想场所。






03.沉浸式售楼处

再来,不得不提的是 Amos & Amos 设计的售楼处,完全采用场景式布局,将客厅、厨房甚至浴室都搬到一起,活脱脱就是一间间迷你样板房。








在过于完整的空间体验之下,沙盘都成了最微不足道的陪衬。





平面图竟然像这样做成了实木托盘,满满逼格,又略能带出自然的设计主题 ▽


这让整套项目由内而外形成统一感,更贴合「接地气」的绿化设计理念。

(来源: 一起设计)